CASA VICI I

FICHA TÉCNICA

Arquitetura predial e interiores | Residencial

arquitetura: Rafael Biscaia + Arquitetos

cliente: Vinícius Romagnolo

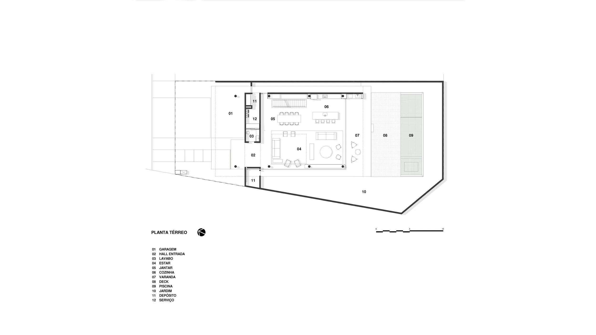
área: terreno: 677,15 m² | construída: 451,17m²

localidade: Águas de Santa Bárbara | São Paulo | Brasil

imagens: Rafael Biscaia

ano: 2021 - 2022

  • A arquitetura se desenvolve como uma sequência de planos e volumes que se abrem ao entorno com generosidade, dissolvendo os limites entre o construído e o natural. Essa fluidez espacial acompanha o fluxo da vida, do vento, da luz e da paisagem, criando um ambiente em constante diálogo com sua presença ao redor.

    Quatro eixos de pilares sustentam os planos das lajes, criando um espaço livre no térreo que valoriza a permeabilidade e potencializa a entrada da luz natural. Essa estratégia estrutural reforça a sensação de leveza e conexão entre os ambientes internos e a paisagem, fortalecendo o diálogo entre a construção e a natureza.

    A casa se encaixa delicadamente na vegetação, com grandes superfícies de vidro que convidam a luz natural a preencher os ambientes e oferecem vistas contínuas da paisagem. A estrutura se apoia em elementos firmes, como concreto e madeira, que trazem peso e durabilidade, enquanto os volumes se organizam para preservar essa leveza e conexão com a natureza.

    O uso dos materiais naturais, com suas texturas e cores, reforça o vínculo com o lugar e o tempo. A luz filtrada e suave desenha sombras que mudam ao longo do dia, tornando o espaço vivo e em constante transformação. A residência não impõe sua forma, mas se acomoda com respeito, valorizando a experiência sensorial em cada espaço.

    Aqui, a arquitetura equilibra força e delicadeza, criando um refúgio acolhedor e integrado, onde cada detalhe conversa com a paisagem e com a presença humana, convidando à contemplação e ao silêncio.

Anterior
Anterior

Casa Capí

Próximo
Próximo

Casa Torres