CASA AZO

FICHA TÉCNICA

Arquitetura predial e interiores | Residencial

arquitetura: Rafael Biscaia + Arquitetos

cliente: Incorporadora

área: terreno: 502,39 m² | construída: 271,36m²

localidade: Londrina | Paraná | Brasil

imagens: Rafael Biscaia

ano: 2022 - 2023

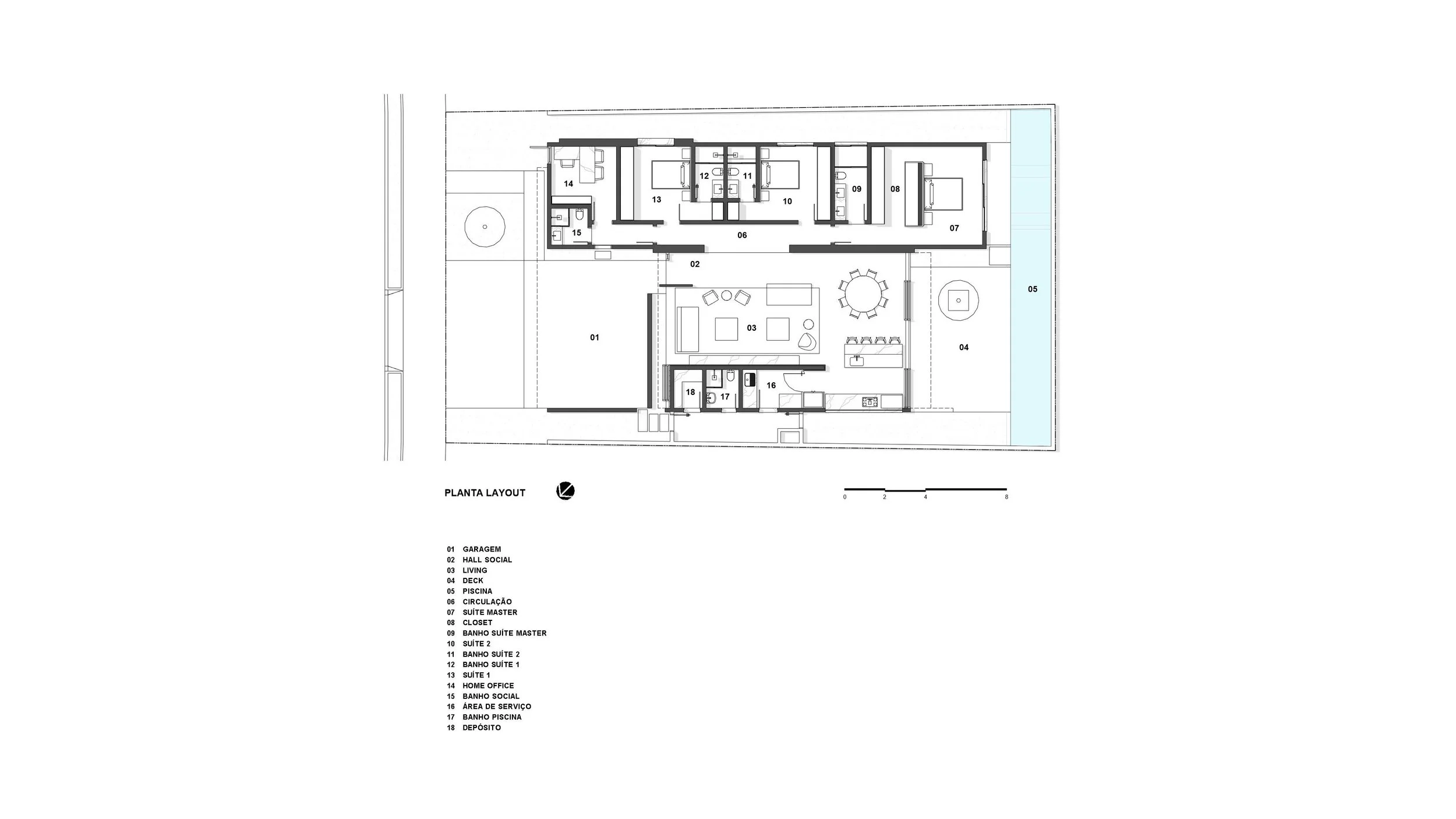
  • A solução arquitetônico parte da contraposição entre dois gestos complementares: de um lado, o volume que abriga as áreas íntimas, definido por sua massa e contorno preciso, evoca um senso de proteção e recolhimento; de outro, o bloco social, conformado por planos em concreto, se abre ao entorno com leveza e transparência, promovendo um espaço dinâmico e permeável.

    Essa dualidade entre contenção e abertura estrutura a narrativa espacial do projeto. O volume íntimo é tratado como um corpo autônomo, com controle de luz e vistas, reforçando a ideia de abrigo e introspecção. Já o bloco social se articula com o pátio localizado na faixa posterior do lote, criando uma transição fluida entre os ambientes internos e a área externa. A piscina, posicionada logo após o pátio, atua como elemento de permanência e contemplação, ampliando a relação com a paisagem e reforçando a dimensão sensível do espaço.

    A implantação valoriza a horizontalidade e a fluidez entre os ambientes, acomodando-se ao terreno com discrição. A vegetação e os elementos naturais — como a água e a luz — são incorporados como parte do espaço construído, criando uma ambiência serena e integrada.

    A materialidade reforça essa leitura: madeira, pedra e concreto compõem uma paleta que equilibra peso e leveza, opacidade e transparência. Os painéis verticais em madeira funcionam como filtros visuais e térmicos, enquanto os grandes planos de vidro ampliam a conexão com o entorno imediato.

    Internamente, os ambientes são modulados com precisão, e a transição entre os setores se dá de forma fluida, sem rupturas formais. O mobiliário e os elementos de iluminação foram desenhados como extensões da arquitetura, contribuindo para a coesão do conjunto.

    A residência não se impõe ao terreno, mas se acomoda a ele com leveza. A arquitetura aqui atua como mediadora entre o cotidiano e a paisagem, entre o gesto técnico e a experiência sensível. Trata-se de um projeto que valoriza o silêncio, a sombra e o vazio — elementos que, juntos, constroem uma forma de habitar que respeita o tempo e o lugar.

Anterior
Anterior

Casa Ato

Próximo
Próximo

Apartamento VR | Interior residencial