BIBLIOTECA PARQUE LONDRINA

FICHA TÉCNICA

Arquitetura predial e interiores | Cultural | Concurso

arquitetura: Rafael Biscaia + Arquitetos

cliente: Concurso

área: terreno: 4.000,00m² | construída: 7.430,53m²

localidade: Londrina | Paraná | Brasil

imagens: Rafael Biscaia

ano: 2015 - 2016

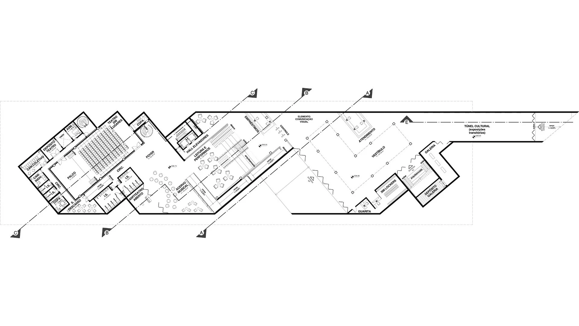
  • A Bibliotaca Parque Londrina como elemento vitalizador do Bosque Marechal Cândido Rondon

    O potencial de nosso trabalho reside na metodologia e na pesquisa aprofundada que o fundamentam, na integração com o ambiente urbano e, sobretudo, na valorização do usuário como parte constitutiva da edificação. Propomos um gesto arquitetônico contemporâneo, moldado pela configuração cultural, pelo lugar e pelo tempo, que busca provocar novas experiências. Acreditamos que o projeto deve ser entendido como uma declaração única de desenho, inserida em seu contexto e orquestrada em função das pessoas que dele se apropriam.

    Assumimos, assim, o compromisso de estabelecer vínculos consistentes entre teoria, arquitetura e contexto urbano. Ao desenvolvermos uma investigação sobre a evolução espacial das bibliotecas, colocamos em evidência um repertório amplo de soluções arquitetônicas que se articula com uma abordagem semiológica voltada à organização espacial e à construção de sentidos compartilhados.

    Fomos guiados por uma consciência histórica e pela sensibilidade às memórias do lugar. Procuramos oferecer ao usuário uma experiência de profundidade temporal, capaz de articular passado e presente a partir de um autêntico “senso de lugar”. A proposta se configura, nesse sentido, como a criação de um túnel cultural que interliga diferentes temporalidades: o passado, representado pelos espaços de encontro cultural da cidade; e o presente-futuro, corporificado na Biblioteca Parque — um equipamento que transcende a função de guardar livros, tornando-se centro comunitário, espaço de bem-estar social, lazer, instrução cívica e construção da memória coletiva.

    Nossa preocupação central foi a inserção urbana. O edifício assume o formato horizontalizado da área, em respeito ao bosque, e se contrapõe à verticalidade e à opacidade do entorno imediato, dominado por edifícios comerciais e residenciais. Reconhecemos o valor de um espaço já apropriado pelos cidadãos — percurso cotidiano entre vias e ponto de encontro para os jogos de xadrez dos idosos — e optamos por elevar a edificação, de modo a preservar e potencializar esses usos. Assim, o projeto cria percursos mais ricos, diversidade de situações urbanas e espaços abertos como praça, café externo, área de projeções e espaços de lazer para a permanência ativa dos idosos.

    Sobre a composição plástica e organização dos espaços, utilizamos formas simples para estruturar volumes que, embora despojados, acolhem com dinamismo e flexibilidade as atividades programáticas. Internamente, a espacialidade se organiza por linhas retas e anguladas, criando ambientes dinâmicos e sensorialmente variados. Tais configurações não apenas orientam e facilitam a compreensão do espaço pelo usuário, como também permitem apropriações múltiplas e transformações contínuas.

    Defendemos, portanto, uma arquitetura que se constitui como agente social e cultural, atenta à acessibilidade, ao conforto ambiental, à eficiência tecnológica e à sustentabilidade. Tais dimensões não são acessórios, mas pressupostos fundamentais do fazer arquitetônico responsável e crítico, que busca integrar forma, lugar e coletividade.

Anterior
Anterior

OF | Edifício corporativo

Próximo
Próximo

Casa Capí